Einfamilienhaus direkt am Steinbruch – Sensationell Wohnen in Beucha
550.000,00 EUR Beucha | Einfamilienhaus | 115,95m² | 4 ZimmerSensationelle Lage – direkt am Steinbruch in Beucha befindet sich das fantastische Grundstück mit Einfamilienhaus und Garage. Das Wohnhaus wurde ca. 1995 in Massivbauweise errichtet und bietet mit 4 Zimmern entspannten Wohnbereich für eine Familie.
Das Erdgeschoss umfasst ca. 65,84 m² Wohnfläche. Von der zentralen Diele sind die Küche, das geräumige Wohn-/Esszimmer mit herrlichem Blick auf den Steinbruch, das Gäste-WC sowie der Wirtschaftsraum mit Zugang zur Garage vereint. Die Naturholzdecke im Erdgeschoss verleiht den Räumen eine warme, sehr behagliche Wohnatmosphäre.
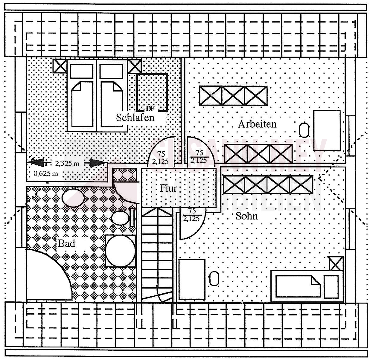
Eine Metalltreppe mit Holzstufen führt in das Dachgeschoss mit ca. 50.11 m² Wohnfläche. Hier befinden sich ein geräumiges Tageslichtbad mit Wanne, Dusche, Waschtisch, WC und WMA, zwei Schlafzimmern und ein Arbeitszimmer. Über den zentralen Flur ist der Aufstieg auf den Dachboden mit viel Staubereich möglich.
Die sonnig gelegene Terrasse am Wohnzimmer lädt zu entspannten Stunden mit Familie und Freunden ein. Für eine angenehme Beschattung ist eine Sonnenmarkise vorhanden. Von hier aus lässt sich der Blick auf das Wasser und das kaum einsehbare Grundstück genießen. Für heutige Wohnwünsche sind Modernisierungen erforderlich. Das wunderschöne Grundstück verspricht pure Wohn- und Lebensqualität und wartet auf liebevolle Hände.
Diese Immobilie vereint die Vorzüge einer ruhigen Wohnlage mit der Nähe zu den urbanen Annehmlichkeiten Leipzigs und stellt ein ideales Zuhause für die ganze Familie dar.
Ausstattung
Außenbereich:
Lage
Beucha ist ein Ortsteil der Stadt Brandis mit ca. 3.300 Einwohnern und liegt etwa 15 km östlich der Stadt Leipzig im Freistaat Sachsen. Bekannt ist Beucha durch das Naherholungsgebiet und seine Steinbrüche. Auf dem ca. 147 m hohen Kirchberg steht die auf zahlreichen Fotos aufgenommene Bergkirche aus dem 13. Jahrhundert. Zum Bau des Völkerschlachtdenkmals in Leipzig wurde Beuchaer Granit verwendet.
Das Grundstück befindet sich in zentraler Ortslage direkt am Tollertsteinbruch in Beucha. Der Bahnhof ist in wenigen Gehminuten erreicht. Stündlich verkehrt hier der Regio nach Leipzig und Grimma. Das familienfreundliche Wohnumfeld ist geprägt durch gepflegte Einfamilienhäuser aller Altersgruppen.
Die hervorragende Verkehrsanbindung nach Leipzig lässt das Stadtzentrum in weniger als 20 Minuten Autofahrt erreichen. Die Anbindung an das Autobahnkreuz Parthenaue A14/A38 bietet Anschluss in alle Richtungen und zeichnet die beliebte Wohnlage aus. Erholung pur bieten eine Vielzahl von Natursteinbrüchen, der Autobahnsee sowie die Waldregion um den Kohlenberg. Auch die Nähe zum Leipziger Neuseengebiet wie z.B. der Cospudener-, Markleeberger- oder Zwenkauer See sind ideal für Wochenendausflüge mit der Familie.
Kindertageseinrichtungen, Grund- und weiterführende Schulen, Einkaufsmöglichkeiten (Netto, EDEKA, Penny..), Banken, Apotheken, Hotel und Gastronomie sowie ärztliche Versorgung runden das positive Bild der Stadt Brandis mit den Ortsteilen Beucha, Polenz und Waldsteinberg ab.
Sonstiges
Die gemachten Angaben beruhen auf den vom Auftraggeber erteilten Auskünften. Für die Vollständigkeit, Aktualität und Richtigkeit dieser Angaben kann keine Haftung übernommen werden. Sie sind vom Interessenten selbst zu überprüfen.
Die Weitergabe dieses Angebotes an Dritte ist nur mit unserer ausdrücklichen und schriftlichen Zustimmung zulässig.
Der genannte Kaufpreis dient lediglich zur Information darüber und stellt kein verbindliches Angebot dar. Irrtum und Zwischenverkehr vorbehalten. Dieses Exposé ist eine Vorabinformation, als Rechtsgrundlage gilt allein der notariell abgeschlossene Kaufvertrag. Mit der notariellen Beurkundung des Kaufvertrages ist eine Provision vom Käufer und Verkäufer jeweils in Höhe von 3,57% des Kaufpreises inkl. 19% MwSt. an Susann Mey Immobilien fällig.
Besichtigungstermine
Besichtigungstermine sind kurzfristig möglich – Terminvereinbarung gern nach telefonischer Kontaktaufnahme unter 0151-20511955
| Angebots-ID: | 100-250041 |
| Verfügbar ab: | sofort |
| Kaufpreis: | 550.000,00 EUR |
| Provision für Käufer: | 3,57% inkl. 19% MwSt. |
| Provision für Verkäufer: | 3,57% inkl. 19% MwSt. |
| Zimmer: | 4 |
| Schlafzimmer: | 3 |
| Badezimmer: | 1 |
| Wohnfläche: | 115,95 m² |
| Grundstücksfläche: | 488 m² |
| Nutzfläche: | 26 m² |
| Etagen: | 2 |
| Objektzustand: | Modernisierungsbedarf |
| Heizungsart: | Zentralheizung |
| Befeuerungsart: | Erdgas |
| Wert des Endenergiebedarfs: | 91,9 kWh/(m²*a) |
| Art des Energieausweises: | E-Verbrauchsausweis |
| Energieeffizienzklasse: | C |
| Baujahr lt. Energieausweis: | 1995 |
04824 Beucha
Deutschland













